W2,445mm×L3,664mm(+けん引部1,100mm)×H3,540mm
コストパフォーマンスを重視した、台数限定のスタートパックです。
12ftタイプのリユースモデルを使うことで、低価格で認可取得を実現します。
【1日の拘束時間】原則として1日の拘束時間は13時間以内、上限は15時間以内。14時間を超える日は週2回までとなるように努める。
例外として1週間の運行がすべて長距離運送かつ、一の運行における休息期間が住所地以外の場合は当該1週間について2回まで16時間以内可。この場合も14時間を超える回数は週2回までとなるよう努める
【1か月の拘束時間】原則として1カ月の拘束時間は284時間以内。例外として労使協定がある場合、1年のうち6カ月までは1年間についての拘束時間が3,400時間を超えない範囲内で月310時間まで延長可。ただし、1ヵ月の拘束時間が284時間を超える月が3ヵ月を超えて連続しないものとし、1ヵ月の時間外・休日労働時間数が100時間未満となるよう努めること。
【1年の拘束時間】原則として1年の拘束時間は3,300時間以内。例外として労使協定がある場合は3,400時間まで延長可能。
点検から継続車検まで
ワンストップサービス
全国400件以上の取得実績
安心・安全に認可取得!
「車検付きトレーラーハウス」は
明確な自動車です。
違法建築物として扱われることなく、
全国どこでも安心して設置出来ます。
2009年に全国初となる
トレーラーハウスでの
営業所認可をサポート。
「コンプライアンスが守れて」
「営業所認可が取れて」
「対面点呼が実現できる」
※2023年7月までの調査結果
メーカー点検実施後
管轄陸運事務局に
持ち込み、継続車検
INTERVIEW INTERVIEW INTERVIEW INTERVIEW INTERVIEW INTERVIEW INTERVIEW INTERVIEW
A:最初は「トレーラーハウスであれば、どの商品を選んでも認可取得出来るのかな」と思い、幾つかメーカーさんを探しました。 各社に話を聞いていく中で「トレーラーハウスデベロップメントさんなら対応した製品もあり専門知識もあるので、認可取得までの道筋をしっかりと作ってくれるだろう」と感じ、お願いする事にしました。やはり確実に営業所認可を取得したいですから、一番安心して任せられる企業を選びました。
A:認可取得が実現出来て利用している方に聞くと、「車庫で対面点呼が出来るのが、ものすごく助かっている」という声が多いです。また、居住空間としてもしっかり作られているので、オフィスと同じような感覚で全く問題なく仕事が進められる点も、すごく喜ばれていますね。
FLOW FLOW FLOW FLOW FLOW FLOW FLOW FLOW FLOW FLOW FLOW FLOW FLOW FLOW FLOW FLOW FLOW FLOW FLOW FLOW
※準備書類 1.土地の謄本・公図のコピー 2.レイアウト図
必要日数:約10日
※設置承諾書の条件欄に従い、トレーラーハウスを運搬・設置することになります。
※契約書類の交わし・図面確認・ご入金など
制作日数:約2ヶ月
※給排水つなぎ込み・電気接続・電話配線を工具なしで着脱できるように施工お願いします。
必要日数:約10日
※日本トレーラーハウス協会(またはトレーラーハウス設置検査機構)より正しい設置が完了している内容の書類が発行されます。
※協会に登録している行政書士に申請業務をご依頼頂ければスムーズに認可取得出来ます。
申請〜認可取得まで3ヵ月前後
※万が一認可取得が出来なかった場合、販売金額をご返金します。
ご不明点、詳細はお問い合わせください。
275万円(税込)
W2,445mm×L3,664mm(+けん引部1,100mm)×H3,540mm
コストパフォーマンスを重視した、台数限定のスタートパックです。
12ftタイプのリユースモデルを使うことで、低価格で認可取得を実現します。
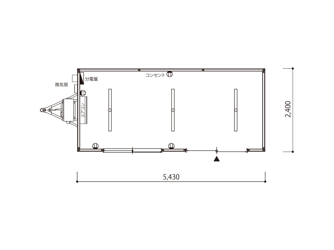
W2,400mm×L5,430mm(+けん引部1,100mm)×H3,360mm
ST-shortを利用した、営業所認可事務所タイプです。
W2,400mm×L7,230mm(+けん引部1,100mm)×H3,360mm
ST-middleを利用した、営業所認可事務所タイプです。
事務所と点呼場を別々に設計する事で、スムーズな点呼業務が実現します。
トイレが内蔵されたタイプもございます。
W2,400mm×L10,530mm(+けん引部1,100mm)×H3,360mm
ST-longを利用した、営業所認可事務所タイプです。
事務所と点呼場を別々に設計する事で、スムーズな点呼業務が実現します。
トイレが内蔵されたタイプもございます。
正しい知識と方法を無料でご紹介しています。











